集团总部
看案例
看案例
设计师
全国装修热线
400-9617-001
首页
设计案例
选设计师
全国网点
工程管控
环保材料
家装攻略
星艺优品
关于星艺
星艺历程
企业动态
星艺图片
星艺故事
星艺视频
星艺图书
星艺导报
星艺之歌
联系星艺
当前位置 :
首页
>
精品案例
>
小岛
小岛
浏览人数: 117 次 更新时间: 2025-12-31 19:38:31
案例风格 :
法式风
案例户型 :
别墅
案例面积 :
585平米
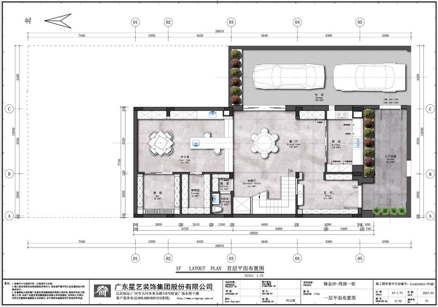
设计理念
对于5年前刚装修踩坑的业主,这次极具小心,决定拆了重新开始,细节的打磨以及给予了设计方足够的信任,灯光的变化研究考虑了各种生活状态的可能
案例展示
案例展示
50张
相关案例
""
镜享悠然
现代简约 | 200 | 复式
大板一区(实景)
中古风 | 140 | 四居
地矿大院(实景)
中古风 | 120 | 三居
本案例设计师
陈文辉
总监设计师
所在城市: 广州市
案例数: 20
全部案例
找他设计
本案例服务店面
广州公司
所在城市: 广州市 | 案例数: 1426
进店看看
装成这样需要多少钱 ?
价格保障
流程保障
设计保障
环保保障
施工保障
售后保障
权益保障
关于星艺
星艺历程
星艺图片
星艺视频
星艺图书
星艺导报
联系星艺
品质服务
工程管控
环保材料
家装分期
星艺优品
星艺软装
香港皇朝家私
新闻动态
企业动态
星艺故事
关注我们
集团小程序
集团公众号
移动端官网
全国装修热线
400-9617-001
时间:周一至周五 9:00-17:30
全国售后热线
400-6885-085
时间:周一至周五 9:00-17:30
广东省广州市番禺区洛浦街上漖段90号华南商业城
Copyright © 2025 星艺装饰 版权所有
粤ICP备13022898号
我家装修多少钱?
现已累计有
103497
位业主获取报价
新房
|
老房
㎡
新房装修
旧房改造
预约看工地
客户报修
户型规划
返回顶部
新房装修
高品质毛坯装修,旧房、二手房改造
新房
旧房
㎡
*
为了您的权益,您的一切信息将被严格保密
预约参观工地
看看别人家怎么施工的
信息保护中
请放心填写
*
将有工作人员与您联系,提供专属服务
预约全屋装修
量身定制理想家
信息保护中
请放心填写
*
将有工作人员与您联系,提供专属服务
免费量房
全面精准测量 合理规划户型空间
㎡
信息保护中
请放心填写
*
将有工作人员联系,确认量房时间
免费提供户型规划方案
多种设计风格任您选择
选择您喜爱的风格
*可多选
现代简约
轻奢
新中式
美式
其他
信息保护中
请放心填写
*
将有工作人员与您电话联系,安排设计师
算一算,你家装修要花多少钱?
免费获取装修报价
1
/3
选择您喜欢的风格
现代简约
轻奢
新中式
美式
欧式
其他
2
/3
选择房屋面积
100㎡以内
100-150㎡
150-300㎡
300㎡以上
3
/3
选择房屋面积
两居室
三居室
四居室
五居室
六居室
信息保护中
请放心填写
预约设计师
预约设计师,定制您喜欢的设计方案
信息保护中
请放心填写
客户报修
省/市
城市